We bring the whole team to give you a powerful advantage
Learn More

Striking Designer Family Sanctuary with North Facing Backyard Oasis in Prized Street

An innovative design, state-of-the-art finishes and a north facing garden oasis all combine to deliver an incredible coastal sanctuary in this contemporary family residence.

Positioned in one of North Bondi’s most coveted streets, this striking home makes a bold statement showcasing a combination of off-form concrete, soaring ceilings, glass and Blackbutt timber flooring.

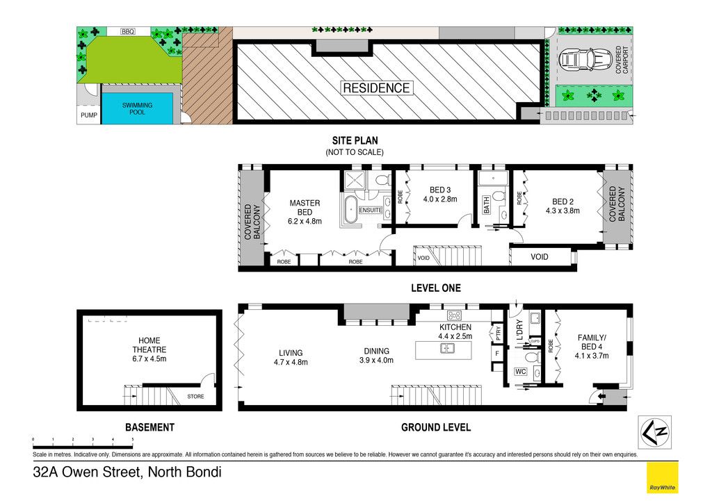
A vast flowing layout reveals a generous open plan living/dining area enjoying a seamless transition to a sun washed alfresco entertainers’ deck and a secluded backyard with a glass fenced pool.

The gourmet CaesarStone island kitchen is replete with a breakfast bar, top-of-the-range Smeg gas appliances, soft-closing cabinetry and an integrated double fridge/freezer.

The upper level comprises a deluxe master wing featuring a glass walled Travertine ensuite complete with a standalone bathtub, hydrotherapy shower and dual vanity.

The king sized bedroom with built-in wardrobe extends to a north facing balcony with plantation shutter doors creating a private in/outdoor space. There are two additional bedrooms, both of which are appointed with built-in wardrobes and the front bedroom adjoins a Travertine balcony also with plantation shutters. The lower level bedroom/flexible home office also features a built-in wardrobe.

Further highlights include a lower level home theatre, ducted air conditioning, a chic guest powder room, video security intercom, level garden access and off street parking. It boasts exceptional street appeal, within a stroll of village shops and cafes, Rose Bay foreshore, parks, buses and Bondi Beach.

– 4 bed | 3 bath | 1 car
– Double height foyer, polished Venetian stucco feature wall
– Generous open living/dining with effortless outdoor flow
– Gourmet CaesarStone island kitchen with breakfast bar
– Quality Smeg gas appliances, double door fridge/freezer
– Bi-fold doors to sunlit alfresco deck with integrated BBQ
– North facing private garden with sunny swimming pool
– Lower level fully equipped home theatre, plentiful storage
– Three upper level bedrooms fitted with built-in wardrobes
– Master wing w/ deluxe glass walled Travertine ensuite
– Master ensuite w/ hydrotherapy shower, standalone bath
– Master to n/facing sunlit balcony w/ plantation shutters
– Flexible home office/fourth bedroom appointed with BIR
– Second bedroom opens to sun washed Travertine balcony
– Blackbutt timber floors, ducted/ac, Travertine bathrooms
– Chic guest powder room, outdoor lighting, good storage
– Off-street parking, level garden access, video intercom
– Coveted street within a stroll of village shops and cafes
– Walk to Rose Bay foreshore, Bondi Beach and city buses
– Close to premier schools, Hall Street’s grocers, eateries

Address: 32a Owen Street, North Bondi

Inspect: xxx

Contact: Warren Ginsberg 0411 024 116

Ray White Double Bay – The Team of Professionals You Deserve